MuM acadGraph LineLetter
Revit 2019
Separater Ansichtsbereich im Grundriss
Im Grundriss wird immer nur eine Höhe (Schnittebene) als Ansichtsbereich dargestellt. Wenn man einen Grundriss öffnet, kann man den Ansichtsbereich editieren. Es gibt eine Oberkante, eine Unterkante und eine Schnittebene, wo der Versatz eintragen werden kann. Die Schnittebene ist vordefiniert mit einem Versatz von 1.20m. Familien (Objekte wie z.B. Badfenster), die höher als 1.20m liegen werden nicht geschnitten und somit nicht dargestellt. Daher werden diese Objekte schnell mal übersehen.

Was viele nicht wissen, dass man zusätzliche separate Ansichtsbereiche in den Grundriss einfügen kann ohne die Schnittebene von 1.20m zu verändern.
Wie funktioniert das?
Man öffnet den Grundriss, wählt im Menu 'Ansicht' das Feld 'Draufsichten' und wartet bis sich das Menufeld öffnet und klickt auf das Feld 'Planbereich'.

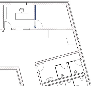
Jetzt kann man den gewünschten Ansichtsbereich zeichnen bzw. abgrenzen und mit Hilfe des grünen Hakens bestätigen


Man sieht nun den Grundriss mit der Schnittebene von 1.20m und den zusätzlichen separaten Planbereich von 2.00m
Mit dieser Möglichkeit lassen sich z.B. auch Lichtkuppeln, Balken oder andere Objekte einblenden, die sonst oberhalb der Schnittlinie liegen
Viel Spaß beim Ausprobieren! |