MuM acadGraph LineLetter
Revit (MEP) 2019
Ich sehe etwas, was du nicht siehst…
Viele Planungsbüros für Gebäudetechnik müssen nach wie vor Architekturdaten im DWG-Format als Planungsgrundlage nutzen. Mit etwas Glück liegen diese im 3D-Format vor. Legen sie dann einen Schnitt in das Gebäude sind dort Dinge zu sehen, die eigentlich gar nicht zu sehen sein sollten.
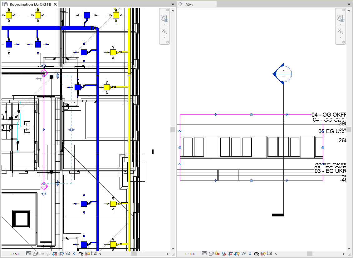
Schauen wir und anhand von zwei Ansichten an, welches Problem die 3D-DWG verursacht:

In der Grundrissansicht (links) ist deutlich die Schnitttiefe zu sehen. Die Außenfenster dürften in der Schnittansicht (rechts) eigentlich nicht zu sehen sein. Sind sie aber. Eine Eigenschaft verknüpfter DWG-Dateien. Was nun? Die Lösung bietet eine Projektfamilie.

Entfernen sie die DWG-Verknüpfung. Erstellen sie eine Projektfamilie. Diese bietet die Möglichkeit, eine DWG-Datei zu verknüpfen. Die 3D-DWG wird also Bestandteil der Projektfamilie und verhält sich nun beim Schneiden komplett anders.

In der rechten Ansicht ist nun genau das zu sehen, was zu sehen sein soll. Nämlich die Innentüren zu den Räumen. Die Fenster sind nicht mehr zu sehen.
Der Fall ist vor kurzem im MuM-Support gelöst worden. Und das ist ein Grund, warum unser Support auch für uns Supporter ein Gewinn ist. Getreu dem Motto: Man lernt nie aus. 1 Euro pro Tag ist somit auch aus Sicht unserer Kunden eine gute Investition.
Weiterhin viel Spaß und Erfolg mit Revit MEP und bleiben sie schön neugierig! |