MuM acadGraph LineLetter
Revit 2020
Raum-Konflikte bei Entwurfsoptionen
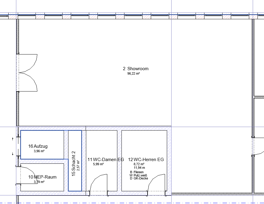
Bei der Arbeit mit Entwurfsoptionen gibt es öfters die Fehlermeldung "Optionskonflikt zwischen Räumen". Da wir immer wieder Anfragen dazu erhalten, soll hier an einem einfachen Beispiel gezeigt werden, wie es zu diesem Fehler kommen kann - und wie man damit umgeht. Hier unsere beispielhafte Ausgangssituation:

Es soll nun eine weitere Variante mit einer größeren Fläche des Showrooms geplant werden. Wir legen uns dafür zunächst zwei Entwurfsoptionen an. Unsere ursprüngliche Planung soll zur Option 1 werden.

Nun wählen wir die Bauteile (und nur diese, nicht die Beschriftungen!), die in Option 1 gehören und verschieben sie:


In den Eigenschaften des Grundrisses stellen wir "sichtbare Optionen" auf Option 1:

In diesem Grundriß sieht alles unverändert aus. Für die Darstellung der Option 2 duplizieren wir nun den Grundriß mit Detaillierung. Diesen benennen wir entsprechend um und aktivieren ihn. In den Eigenschaften stellen wir "sichtbare Optionen" auf Option 2.

Und hier kommt schon unser Konflikt:

Wenn wir bestätigen, zeigen die Beschriftung von Showroom und Flur jetzt den Vermerk "Optionskonflikt". Aber nur in Option 2. Im Grundriß der Option 1 ist alles unverändert. Wie ist das zu erklären?

Showroom und Flur gehören zur Basisvorlage . Die Wände der WC gehören jetzt zur Option 1. Sie wirken aber trotzdem als raumbegrenzende Elemente für Showroom und Flur, da Option 1 die Primäroption ist. Anders aber in Option 2: hier fehlen nun die raumbegrenzenden Elemente für die Räume der Basisvorlage.
Wir benötigen noch ein raumbegrenzendes Element, Wand oder Raumtrennungslinie, das zu Option 2 gehört.

Der Showroom hat jetzt in der Basisvorlage nichts mehr zu suchen, denn er hat in beiden Optionen unterschiedliche Form und Größe. Wir wählen ihn und verschieben in beide Optionen.

Beim Flur haben wir die Wahl: entweder überführen wir ihn analog in beide Optionen, oder wir belassen ihn in der Basisvorlage. Dann wäre die Lösung, in der Basisvorlage an Stelle der fehlenden Wand noch eine Raumtrennungslinie einzufügen. Das wäre logisch, da der Flur ja unverändert bleibt. Den notwendig erscheinenden Fehler "Eine Wand und eine Raumtrennungslinie überlappen" müssen wir in diesem Fall akzeptieren.

Viel Spaß beim Ausprobieren und weiterhin viel Erfolg mit Revit!
|